売買・賃貸物件を条件から探す
種類から探す

ベルヴュー麹町[179701-6691c]

ベルヴュー麹町
ベルヴュー麹町
ベルヴュー麹町
ベルヴュー麹町
ベルヴュー麹町
ベルヴュー麹町
ベルヴュー麹町
ベルヴュー麹町
ベルヴュー麹町
ベルヴュー麹町
ベルヴュー麹町
ベルヴュー麹町
ベルヴュー麹町
ベルヴュー麹町
ベルヴュー麹町
ベルヴュー麹町

※お問い合わせの際は物件コード「179701-6691cをお伝えいただくとスムーズです

物件コードは「179701-6691c」とお伝えください

メールでのお問い合わせ (無料)
賃料
59.697万円
所在地
東京都千代田区麹町5丁目5-2
沿線情報
四ツ谷駅 徒歩5分 総武・中央緩行線
麹町駅 徒歩5分 東京地下鉄有楽町線
半蔵門駅 徒歩10分 東京地下鉄半蔵門線
建物/専有面積
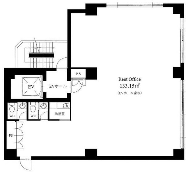
133.15m²
階数/階
2階 / 4階建て
物件種目
事務所
築年月
2017年12月

センチュリー21LIFE HOME 芹澤 佑亮

おすすめコメント

ぜひ一度見ていただきたい、「ベルヴュー麹町」です。空気の循環を手軽にできる24時間換気システム付き。周辺には、徒歩5分で利用できる駅があります。賃料は59.697万円です。アクシデントが起こればスタッフが駆けつける24時間緊急通報システム。3駅以上利用可なので電車での移動が便利です。礼金がゼロ円なので、初期費用節約につながります。

センチュリー21LIFE HOME 芹澤 佑亮

特徴ピックアップ

物件情報

物件名 ベルヴュー麹町 物件種別 事務所
所在地 東京都千代田区麹町5丁目5-2 沿線情報 四ツ谷駅 徒歩5分 総武・中央緩行線
麹町駅 徒歩5分 東京地下鉄有楽町線
半蔵門駅 徒歩10分 東京地下鉄半蔵門線
建物/専有面積 133.15m²(40.27坪) その他面積
物件構造 鉄筋コンクリート造 築年月 2017年12月
階建/階 地下1階/4階建ての2階部分 間取り・向き 東南向き
接道状況 建物状況 空き
借地件種類 普通借家権
駐車場
備考・設備

費用詳細

賃料 59.697万円 管理費等 管理費:132,660円
敷金・保証金 敷金:6ヶ月 保証金:なし 礼金・敷引 礼金:なし 敷引:1.1ヶ月
更新料 なし その他費用
備考 保証人代行会社:その他(その他) 仲介手数料:1ヶ月
ぜひ一度見ていただきたい、「ベルヴュー麹町」です。トラブルに強い24時間緊急通報システムが整っています。周辺には、徒歩5分で利用できる駅があります。使いたいときに使える24時間換気システムです。賃料は59.697万円です。ご利用できる駅は3駅以上あり、アクセスの良い立地です。

備考情報

引渡時期 即引渡し可 取引態様 仲介
物件コード 179701-6691c 加盟店整理番号 297970
更新日 2025年10月17日 次回更新予定日 2025年10月24日

お問い合わせ

物件を見たい、より詳しい情報や周辺環境を確認したいなどのご相談も、お気軽にお問い合わせください。

※お問い合わせの際は物件コード「179701-6691cをお伝えいただくとスムーズです

物件コードは「179701-6691c」とお伝えください

メールでのお問い合わせ (無料)

お問い合わせ内容

お問い合わせ内容
(複数選択可)
必須
お問い合わせ内容詳細 任意

物件の希望条件、ご質問、ご要望 等(500文字以内)

入居希望時期 任意
オンラインによる面会対応 任意 ※具体的な対応方法は各店舗にご確認ください。

お客様情報について

お名前(漢字) 必須
お名前(かな) 必須
メールアドレス 必須
電話番号 必須
ご住所 任意

郵便番号

都道府県

市区町村

番地・号

マンション・建物名
(部屋番号)

郵便番号

都道府県

市区町村

番地・号

マンション・
建物名
(部屋番号)

個人情報保護方針 
※必ずお読みください
必須

送信の際は「個人情報の取り扱いについて」にご同意のうえ、チェックボックスにチェックを入れてください。なお、当社に対し個人情報をご提供いただくことは任意です。ただし、個人情報をご提供いただけない場合はご回答又はサービスの提供ができませんので、あらかじめご了承ください。

取扱店舗

センチュリー21LIFE HOME

センチュリー21LIFE HOME センチュリオン受賞

※お問い合わせの際は、物件コード「179701-6691c」をお伝えいただくとスムーズです。
住所
神奈川県川崎市高津区溝口1丁目12-18志村ビル7階
アクセス
東急田園都市線「溝の口駅」 徒歩3分
東急大井町線「溝の口駅」 徒歩3分
南武線「武蔵溝ノ口駅」 徒歩3分
会社名
株式会社LIFE HOME
代表者
古田 博敏
営業時間
09:00~20:00
定休日
定休日無
免許番号
国土交通大臣(1)第010508号

センチュリー21LIFE HOME 古田 博敏

店代表者メッセージ

マイホーム探しの第一歩は、お客さまにとっての[適正価格]を知るところから始まります。広告などで[頭金0円、家賃と同じ月額負担]などというフレーズを良く目にしますが、そのセールストークに踊らされ身の丈にあっていないローンを組んでしまっている人は実は少なくありません。それは後に趣味や外食、娯楽への出費を削ることとなり、結果として楽しみにしていたマイホーム生活が理想とかけ離れたものになってしまいかねません。ライフホームではまず始めに、ファイナンシャルプランナーが幅広い専門知識をもとにお客さま専用のライフプランを作成します。そこで[適正価格]をしっかりと見極めた上で、お客さまのライフスタイルやご希望に沿った物件をご提案させていただきます。お金に関するご相談は勿論のこと、お客さまに安心してマイホームをご購入頂けるよう、ご紹介する物件に関しましても多方面にわたり調査を惜しみません。大きな会社には出来ない、細やかで丁寧な対応を心掛けております。また、弊社の営業スタッフは全員が業界経験豊富な有資格者です。どうぞ安心してライフホームにお任せください。

センチュリー21LIFE HOME 古田 博敏

この店舗へのお客様の声

  • 東京都 S.M様
    住宅を内覧する際に、良い点や悪い点を正直に教えて頂きました。また連絡も私が返信が遅くなってしまう事がありましたが迅速に対応していただき、購入の際の流れなどもこまめに連絡をいただき良い対応をしていただきました。
  • 神奈川県 H.K様
    満足しております。
  • 神奈川県 M.A様
    店内は明るく清掃が行き届いており、気持ちのいい空間でした。不動産のプロとして真剣に話を聞いてくださいました。

駅近隣の物件

この物件と価格が近い物件