売買・賃貸物件を条件から探す
種類から探す

大沢の新築一戸建て(一軒家・分譲・建売)購入

大沢の新築一戸建て(一軒家・分譲・建売)をお探しなら不動産フランチャイズ店舗数ナンバー1のセンチュリー21におまかせ下さい。お客様の住みたいエリア・条件の新築一戸建て(一軒家・分譲・建売)情報を2件紹介しております。住みたい沿線・駅・地域や、ご希望に合った間取り、予算・ご希望の家賃、徒歩時間などの条件から、ご希望に沿った新築一戸建て(一軒家・分譲・建売)情報を見つけていただけます。お客様にご希望に沿うお部屋が見つかるようにお手伝いいたしますので、お気軽にご相談ください!

エリアから探す
東京都
三鷹市 大沢

変更

条件で絞り込む

検索結果2

並び順
表示件数
  • 1
チェックした物件(最大10件まで)を

NEW

戸建て

新築

三鷹市大沢5丁目の新築一戸建

  • 三鷹市大沢5丁目の新築一戸建

三鷹市大沢5丁目の新築一戸建

4,690万円

所在地
東京都三鷹市大沢5丁目
最寄り駅
西調布駅 徒歩28分 京王電鉄京王線
多磨駅 徒歩28分 西武鉄道多摩川線
調布駅 バス11分 大沢グランド入口停 停歩5分 京王電鉄京王線
土地面積
105.31m²
建物面積
80.18m²
間取り
3SLDK
階数
2階建て
築年月
2025年10月
建物現況
建築中

画像カテゴリ

  • 間取り

取扱店舗

センチュリー21トラスト不動産 佐藤 千絵

物件担当者コメント
センチュリー21トラスト不動産

NEW

戸建て

新築

三鷹市大沢1丁目の新築一戸建

  • 三鷹市大沢1丁目の新築一戸建

三鷹市大沢1丁目の新築一戸建

6,390万円

所在地
東京都三鷹市大沢1丁目
最寄り駅
調布駅 バス12分 深大寺北町停 停歩9分 京王電鉄京王線
三鷹駅 バス27分 深大寺北町停 停歩9分 総武・中央緩行線
土地面積
165.28m²
建物面積
102.06m²
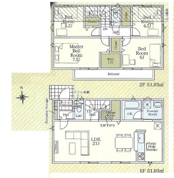
間取り
4LDK
階数
2階建て
築年月
2025年12月
建物現況
建築中

画像カテゴリ

  • 間取り

取扱店舗

センチュリー21トラスト不動産 佐藤 千絵

物件担当者コメント
センチュリー21トラスト不動産
チェックした物件(最大10件まで)を
  • 1