売買・賃貸物件を条件から探す
種類から探す

大阪市谷町線の新築一戸建て(一軒家・分譲・建売)購入

大阪市谷町線の新築一戸建て(一軒家・分譲・建売)をお探しなら不動産フランチャイズ店舗数ナンバー1のセンチュリー21におまかせ下さい。お客様の住みたいエリア・条件の新築一戸建て(一軒家・分譲・建売)情報を278件紹介しております。住みたい沿線・駅・地域や、ご希望に合った間取り、予算・ご希望の家賃、徒歩時間などの条件から、ご希望に沿った新築一戸建て(一軒家・分譲・建売)情報を見つけていただけます。お客様にご希望に沿うお部屋が見つかるようにお手伝いいたしますので、お気軽にご相談ください!

沿線から探す
大阪府
大阪市谷町線

変更

条件で絞り込む

検索結果278

並び順
表示件数
チェックした物件(最大10件まで)を

戸建て

新築

大阪市東住吉区住道矢田4丁目の新築一戸建

◆◇2026年3月・完成予定◇◆◆◇即日案内可能◆◇最寄り駅「近鉄南大阪線矢田駅」まで徒歩16分◆◇アフターサービス付で安心・安全な新生活を実現

  • 大阪市東住吉区住道矢田4丁目の新築一戸建

  • 大阪市東住吉区住道矢田4丁目の新築一戸建

大阪市東住吉区住道矢田4丁目の新築一戸建
大阪市東住吉区住道矢田4丁目の新築一戸建

3,580万円

所在地
大阪府大阪市東住吉区住道矢田4丁目
最寄り駅
矢田駅 徒歩16分 近鉄南大阪線
喜連瓜破駅 徒歩29分 大阪市谷町線
河内天美駅 徒歩31分 近鉄南大阪線
針中野駅 徒歩31分 近鉄南大阪線
土地面積
83.86m²
建物面積
95.34m²
間取り
2SLDK
階数
2階建て
築年月
2026年05月中旬
建物現況
未着工

画像カテゴリ

  • 間取り
  • 全体区画図

取扱店舗

センチュリー21プラウデストハウジング放出駅前店 小西 真矢奈

物件担当者コメント
◆◇2026年3月・完成予定◇◆◆◇即日案内可能◆◇最寄り駅「近鉄南大阪線矢田駅」まで徒歩16分◆◇アフターサービス付で安心・安全な新生活を実現
センチュリー21プラウデストハウジング放出駅前店 小西 真矢奈

NEW

戸建て

新築

摂津市鳥飼和道2丁目の新築一戸建

◆◇2026年5月・完成済◇◆◇駐車1台可能◇最寄り駅「南摂津」まで徒歩11分の好立地◇防犯設備充実で毎日安心生活◇各部屋に収納ありでスッキリ

  • 摂津市鳥飼和道2丁目の新築一戸建

  • 摂津市鳥飼和道2丁目の新築一戸建

  • 摂津市鳥飼和道2丁目の新築一戸建

摂津市鳥飼和道2丁目の新築一戸建
摂津市鳥飼和道2丁目の新築一戸建
摂津市鳥飼和道2丁目の新築一戸建

3,580万円

所在地
大阪府摂津市鳥飼和道2丁目
最寄り駅
南摂津駅 徒歩11分 大阪モノレール本線
大日駅 徒歩24分 大阪市谷町線
摂津駅 徒歩34分 大阪モノレール本線
土地面積
103.89m²
建物面積
100.44m²
間取り
4LDK
階数
2階建て
築年月
2026年05月
建物現況
新築

画像カテゴリ

  • 外観
  • 間取り
  • 全体区画図

取扱店舗

  • センチュリー21プラウデストレジデンス城東

センチュリー21プラウデストレジデンス城東 

物件担当者コメント
◆◇2026年5月・完成済◇◆◇駐車1台可能◇最寄り駅「南摂津」まで徒歩11分の好立地◇防犯設備充実で毎日安心生活◇各部屋に収納ありでスッキリ
センチュリー21プラウデストレジデンス城東

戸建て

新築

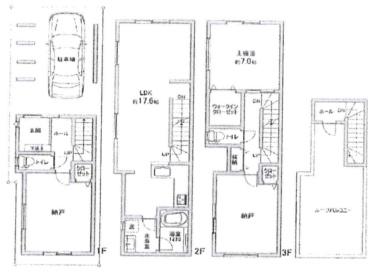
寝屋川市仁和寺町 新築一戸建て 4期 全1区画

◇立地・京阪電鉄京阪線「寝屋川市駅」までバス乗車12分、「宮垣内」バス停歩4分(320m)・大阪モノレール本線「大日駅」歩34分(2660m)・啓明小学校歩…

  • 寝屋川市仁和寺町 新築一戸建て 4期 全1区画

  • 寝屋川市仁和寺町 新築一戸建て 4期 全1区画

  • 寝屋川市仁和寺町 新築一戸建て 4期 全1区画

  • 寝屋川市仁和寺町 新築一戸建て 4期 全1区画

  • 寝屋川市仁和寺町 新築一戸建て 4期 全1区画

寝屋川市仁和寺町 新築一戸建て 4期 全1区画
寝屋川市仁和寺町 新築一戸建て 4期 全1区画
寝屋川市仁和寺町 新築一戸建て 4期 全1区画
寝屋川市仁和寺町 新築一戸建て 4期 全1区画
寝屋川市仁和寺町 新築一戸建て 4期 全1区画

3,580万円

所在地
大阪府寝屋川市仁和寺町
最寄り駅
寝屋川市駅 バス12分 宮垣内停 停歩4分 京阪電気鉄道京阪線
大日駅 徒歩34分 大阪モノレール本線
萱島駅 徒歩34分 京阪電気鉄道京阪線
土地面積
62.73m²
建物面積
111.28m²
間取り
2SLDK
階数
3階建て
築年月
2026年08月
建物現況
建築中

画像カテゴリ

  • 間取り
  • 同仕様写真(キッチン)
  • 全体区画図
  • 同仕様写真(浴室)
  • 同仕様写真(リビング)

取扱店舗

センチュリー21フロンティア住宅販売枚方店 

物件担当者コメント
◇立地・京阪電鉄京阪線「寝屋川市駅」までバス乗車12分、「宮垣内」バス停歩4分(320m)・大阪モノレール本線「大日駅」歩34分(2660m)・啓明小学校歩10分(800m)・第九中学校歩14分(…
センチュリー21フロンティア住宅販売枚方店

戸建て

新築

寝屋川市仁和寺町の新築一戸建

◆◇2026年8月・完成予定◇◆即日案内可能最寄り駅「寝屋川市」までバス12分アフターサービス付で安心・安全な新生活を実現

  • 寝屋川市仁和寺町の新築一戸建

  • 寝屋川市仁和寺町の新築一戸建

  • 寝屋川市仁和寺町の新築一戸建

  • 寝屋川市仁和寺町の新築一戸建

  • 寝屋川市仁和寺町の新築一戸建

寝屋川市仁和寺町の新築一戸建
寝屋川市仁和寺町の新築一戸建
寝屋川市仁和寺町の新築一戸建
寝屋川市仁和寺町の新築一戸建
寝屋川市仁和寺町の新築一戸建

3,580万円

所在地
大阪府寝屋川市仁和寺町
最寄り駅
寝屋川市駅 徒歩26分 京阪電気鉄道京阪線
大日駅 徒歩35分 大阪市谷町線
大和田駅 徒歩36分 京阪電気鉄道京阪線
大日駅 徒歩35分 大阪モノレール本線
土地面積
62.73m²
建物面積
111.28m²
間取り
2SLDK
階数
3階建て
築年月
2026年08月
建物現況
建築中

画像カテゴリ

  • 外観
  • 間取り
  • 全体区画図
  • その他現地

取扱店舗

センチュリー21プラウデストホーム 

物件担当者コメント
◆◇2026年8月・完成予定◇◆即日案内可能最寄り駅「寝屋川市」までバス12分アフターサービス付で安心・安全な新生活を実現
センチュリー21プラウデストホーム

NEW

戸建て

新築

摂津市鳥飼和道2丁目の新築一戸建

◆◇2026年5月・完成済◇◆◇駐車1台可能◇最寄り駅「南摂津」まで徒歩11分の好立地◇防犯設備充実で毎日安心生活◇各部屋に収納ありでスッキリ

  • 摂津市鳥飼和道2丁目の新築一戸建

  • 摂津市鳥飼和道2丁目の新築一戸建

  • 摂津市鳥飼和道2丁目の新築一戸建

摂津市鳥飼和道2丁目の新築一戸建
摂津市鳥飼和道2丁目の新築一戸建
摂津市鳥飼和道2丁目の新築一戸建

3,580万円

所在地
大阪府摂津市鳥飼和道2丁目
最寄り駅
南摂津駅 徒歩11分 大阪モノレール本線
大日駅 徒歩24分 大阪市谷町線
摂津駅 徒歩34分 大阪モノレール本線
土地面積
103.89m²
建物面積
100.44m²
間取り
4LDK
階数
2階建て
築年月
2026年05月
建物現況
新築

画像カテゴリ

  • 外観
  • 間取り
  • 全体区画図

取扱店舗

センチュリー21プラウデストホーム 

物件担当者コメント
◆◇2026年5月・完成済◇◆◇駐車1台可能◇最寄り駅「南摂津」まで徒歩11分の好立地◇防犯設備充実で毎日安心生活◇各部屋に収納ありでスッキリ
センチュリー21プラウデストホーム

NEW

戸建て

新築

摂津市鳥飼和道2丁目の新築一戸建

◆◇2026年5月・完成済◇◆◇駐車1台可能◇最寄り駅「南摂津」まで徒歩11分の好立地◇防犯設備充実で毎日安心生活◇各部屋に収納ありでスッキリ

  • 摂津市鳥飼和道2丁目の新築一戸建

  • 摂津市鳥飼和道2丁目の新築一戸建

  • 摂津市鳥飼和道2丁目の新築一戸建

摂津市鳥飼和道2丁目の新築一戸建
摂津市鳥飼和道2丁目の新築一戸建
摂津市鳥飼和道2丁目の新築一戸建

3,580万円

所在地
大阪府摂津市鳥飼和道2丁目
最寄り駅
南摂津駅 徒歩11分 大阪モノレール本線
大日駅 徒歩24分 大阪市谷町線
摂津駅 徒歩34分 大阪モノレール本線
土地面積
103.89m²
建物面積
100.44m²
間取り
4LDK
階数
2階建て
築年月
2026年05月
建物現況
新築

画像カテゴリ

  • 外観
  • 間取り
  • 全体区画図

取扱店舗

センチュリー21プラウデストハウジング放出駅前店 

物件担当者コメント
◆◇2026年5月・完成済◇◆◇駐車1台可能◇最寄り駅「南摂津」まで徒歩11分の好立地◇防犯設備充実で毎日安心生活◇各部屋に収納ありでスッキリ
センチュリー21プラウデストハウジング放出駅前店

NEW

戸建て

新築

摂津市鳥飼和道2丁目 新築戸建 1号棟

●1号棟!!!●角地!●令和8年5月建築!●完成済みにつき、即内覧可能!

  • 摂津市鳥飼和道2丁目 新築戸建 1号棟

  • 摂津市鳥飼和道2丁目 新築戸建 1号棟

  • 摂津市鳥飼和道2丁目 新築戸建 1号棟

摂津市鳥飼和道2丁目 新築戸建 1号棟
摂津市鳥飼和道2丁目 新築戸建 1号棟
摂津市鳥飼和道2丁目 新築戸建 1号棟

3,580万円

所在地
大阪府摂津市鳥飼和道2丁目
最寄り駅
南摂津駅 徒歩11分 大阪モノレール本線
大日駅 徒歩24分 大阪市谷町線
井高野駅 徒歩34分 大阪市今里筋線
土地面積
103.89m²
建物面積
100.44m²
間取り
4LDK
階数
2階建て
築年月
2026年05月
建物現況
新築

画像カテゴリ

  • 外観
  • 間取り
  • 区画図

取扱店舗

センチュリー21ハウスマイスター摂津店 

物件担当者コメント
●1号棟!!!●角地!●令和8年5月建築!●完成済みにつき、即内覧可能!
センチュリー21ハウスマイスター摂津店

NEW

戸建て

新築

摂津市鳥飼和道2丁目の新築一戸建

◆◇2026年5月・完成済◇◆◇駐車1台可能◇最寄り駅「南摂津」まで徒歩11分の好立地◇防犯設備充実で毎日安心生活◇各部屋に収納ありでスッキリ

  • 摂津市鳥飼和道2丁目の新築一戸建

  • 摂津市鳥飼和道2丁目の新築一戸建

  • 摂津市鳥飼和道2丁目の新築一戸建

摂津市鳥飼和道2丁目の新築一戸建
摂津市鳥飼和道2丁目の新築一戸建
摂津市鳥飼和道2丁目の新築一戸建

3,580万円

所在地
大阪府摂津市鳥飼和道2丁目
最寄り駅
南摂津駅 徒歩11分 大阪モノレール本線
大日駅 徒歩24分 大阪市谷町線
摂津駅 徒歩34分 大阪モノレール本線
土地面積
103.89m²
建物面積
100.44m²
間取り
4LDK
階数
2階建て
築年月
2026年05月
建物現況
新築

画像カテゴリ

  • 外観
  • 間取り
  • 全体区画図

取扱店舗

  • センチュリー21プラウデストレジデンス堂島

センチュリー21プラウデストレジデンス堂島 

物件担当者コメント
◆◇2026年5月・完成済◇◆◇駐車1台可能◇最寄り駅「南摂津」まで徒歩11分の好立地◇防犯設備充実で毎日安心生活◇各部屋に収納ありでスッキリ
センチュリー21プラウデストレジデンス堂島

戸建て

新築

摂津市鳥飼西2丁目 新築戸建

☆土地面積約22.3坪☆駐車場2台横並びが可能な広々間口約6.7m☆前面道路幅員約4.8m車通りの少ない落ち着いた雰囲気の住宅地です。

  • 摂津市鳥飼西2丁目 新築戸建

  • 摂津市鳥飼西2丁目 新築戸建

  • 摂津市鳥飼西2丁目 新築戸建

  • 摂津市鳥飼西2丁目 新築戸建

  • 摂津市鳥飼西2丁目 新築戸建

摂津市鳥飼西2丁目 新築戸建
摂津市鳥飼西2丁目 新築戸建
摂津市鳥飼西2丁目 新築戸建
摂津市鳥飼西2丁目 新築戸建
摂津市鳥飼西2丁目 新築戸建

3,580万円

所在地
大阪府摂津市鳥飼西2丁目
最寄り駅
南摂津駅 徒歩21分 大阪モノレール本線
大日駅 徒歩42分 大阪市谷町線
摂津駅 徒歩40分 大阪モノレール本線
土地面積
73.72m²
建物面積
111.42m²
間取り
4LDK
階数
3階建て
築年月
2026年09月
建物現況
未着工

画像カテゴリ

  • 外観
  • 間取り
  • 前面道路含む現地写真
  • その他

取扱店舗

センチュリー21ハウスマイスター摂津店 國岡 義貴

物件担当者コメント
☆駐車場2台横並びリビング約16.1帖の4LDK☆日常便利設備:床暖房(DK)、食洗器、浴室乾燥機付き☆LDKにはパントリースペース日常品の保管に
センチュリー21ハウスマイスター摂津店

戸建て

新築

大阪市平野区長吉六反3丁目

■広々とした玄関でお出迎え♪■たっぷりの収納を設けたシャワー付洗面台で快適な暮らし■冬でも暖かい床暖房完備

  • 大阪市平野区長吉六反3丁目

大阪市平野区長吉六反3丁目

3,590万円

所在地
大阪府大阪市平野区長吉六反3丁目
最寄り駅
長原駅 徒歩12分 大阪市谷町線
久宝寺駅 徒歩29分 関西本線
久宝寺駅 徒歩29分 おおさか東線
久宝寺口駅 徒歩51分 近鉄大阪線
土地面積
64.23m²
建物面積
100.63m²
間取り
3LDK
階数
3階建て
築年月
2026年05月中旬
建物現況
建築中

画像カテゴリ

  • 間取り

取扱店舗

センチュリー21近畿不動産販売東大阪店 

物件担当者コメント
■広々とした玄関でお出迎え♪■たっぷりの収納を設けたシャワー付洗面台で快適な暮らし■冬でも暖かい床暖房完備
センチュリー21近畿不動産販売東大阪店
チェックした物件(最大10件まで)を