売買・賃貸物件を条件から探す
種類から探す

アストラムラインの中古マンション購入

アストラムラインの中古マンションをお探しなら不動産フランチャイズ店舗数ナンバー1のセンチュリー21におまかせ下さい。お客様の住みたいエリア・条件の中古マンション情報を8件紹介しております。住みたい沿線・駅・地域や、ご希望に合った間取り、予算・ご希望の家賃、徒歩時間などの条件から、ご希望に沿った中古マンション情報を見つけていただけます。お客様にご希望に沿うお部屋が見つかるようにお手伝いいたしますので、お気軽にご相談ください!

沿線から探す
広島県
アストラムライン

変更

条件で絞り込む

検索結果8

並び順
表示件数
  • 1
チェックした物件(最大10件まで)を

NEW

マンション

太田川コーポ

■アストラムライン西原駅徒歩20分■広々1R■静かで落ち着いた環境

  • 太田川コーポ

  • 太田川コーポ

  • 太田川コーポ

  • 太田川コーポ

  • 太田川コーポ

太田川コーポ
太田川コーポ
太田川コーポ
太田川コーポ
太田川コーポ

240万円

所在地
広島県広島市安佐南区東野1丁目13-3
最寄り駅
西原駅 徒歩18分 アストラムライン
中筋駅 徒歩20分 アストラムライン
戸坂駅 徒歩20分 芸備線
専有面積
27.97m²
バルコニー
1.4m²
間取り
1R
階数
1/6階
築年月
1974年07月
建物現況
空家

画像カテゴリ

  • 外観
  • 間取り
  • リビング
  • キッチン

取扱店舗

センチュリー21リベルテ 山口 慶護

物件担当者コメント
■アストラムライン西原駅徒歩18分■広々1R■静かで落ち着いた環境
センチュリー21リベルテ 山口 慶護

マンション

ファミール広島A棟

【採光良好、爽やかな風が吹き抜ける6階】【平坦で移動もスムーズな立地】

  • ファミール広島A棟

  • ファミール広島A棟

  • ファミール広島A棟

  • ファミール広島A棟

  • ファミール広島A棟

ファミール広島A棟
ファミール広島A棟
ファミール広島A棟
ファミール広島A棟
ファミール広島A棟

1,180万円

所在地
広島県広島市安佐南区古市1丁目9-1
最寄り駅
中筋駅 徒歩8分 アストラムライン
古市駅 徒歩8分 アストラムライン
古市橋駅 徒歩8分 可部線
専有面積
65.65m²
バルコニー
8.27m²
間取り
3LDK
階数
6/7階
築年月
1975年06月上旬
建物現況
空家

画像カテゴリ

  • 外観
  • 間取り
  • リビング
  • キッチン

取扱店舗

センチュリー21リベルテ 平川 賢司

物件担当者コメント
【採光良好、爽やかな風が吹き抜ける6階】【通勤通学に便利な交通アクセス】【平坦で移動もスムーズな立地】【トランクルーム有】
センチュリー21リベルテ 平川 賢司

NEW

マンション

ダイアパレス牛田天水苑

【最上階】眺望良好■全室フローリング■収納豊富■緑豊かな住宅地

  • ダイアパレス牛田天水苑

  • ダイアパレス牛田天水苑

  • ダイアパレス牛田天水苑

  • ダイアパレス牛田天水苑

  • ダイアパレス牛田天水苑

ダイアパレス牛田天水苑
ダイアパレス牛田天水苑
ダイアパレス牛田天水苑
ダイアパレス牛田天水苑
ダイアパレス牛田天水苑

1,280万円

所在地
広島県広島市東区戸坂くるめ木1丁目26-1
最寄り駅
不動院前駅 徒歩15分 アストラムライン
戸坂駅 徒歩25分 芸備線
祇園新橋北駅 徒歩24分 アストラムライン
専有面積
82.88m²
バルコニー
8m²
間取り
3LDK
階数
9/9階
築年月
1989年11月下旬
建物現況
空家

画像カテゴリ

  • 外観
  • 間取り
  • リビング
  • キッチン

取扱店舗

センチュリー21リベルテ 平川 賢司

物件担当者コメント
【最上階】眺望良好■全室フローリング■収納豊富■緑豊かな住宅地
センチュリー21リベルテ 平川 賢司

マンション

サーパス沼田

【令和7年5月リフォーム完了】リフォーム内容■システムキッチン新規交換■ユニットバス新規交換■シャワートイレ新規交換■洗面化粧台新規交換■クロス貼替他

  • サーパス沼田

  • サーパス沼田

  • サーパス沼田

  • サーパス沼田

  • サーパス沼田

サーパス沼田
サーパス沼田
サーパス沼田
サーパス沼田
サーパス沼田

1,898万円

所在地
広島県広島市安佐南区伴東5丁目6-22
最寄り駅
伴駅 徒歩10分 アストラムライン
長楽寺駅 徒歩10分 アストラムライン
高取駅 徒歩18分 アストラムライン
専有面積
64.77m²
バルコニー
8.69m²
間取り
3LDK
階数
9/9階
築年月
1992年10月
建物現況
空家

画像カテゴリ

  • 外観
  • 間取り
  • キッチン
  • リビング

取扱店舗

センチュリー21リベルテ 山口 慶護

物件担当者コメント
【令和7年5月リフォーム完了】リフォーム内容■システムキッチン新規交換■ユニットバス新規交換■シャワートイレ新規交換■洗面化粧台新規交換■クロス貼替他
センチュリー21リベルテ 山口 慶護

マンション

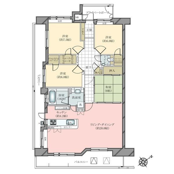
ダイアパレス高取駅前

【アストラムライン高取駅徒歩2分】【3LDK】【南東向きバルコニーで日当たり良好】【高層階で眺望良好】

  • ダイアパレス高取駅前

  • ダイアパレス高取駅前

  • ダイアパレス高取駅前

  • ダイアパレス高取駅前

  • ダイアパレス高取駅前

ダイアパレス高取駅前
ダイアパレス高取駅前
ダイアパレス高取駅前
ダイアパレス高取駅前
ダイアパレス高取駅前

2,100万円

所在地
広島県広島市安佐南区高取北3丁目10-22
最寄り駅
高取駅 徒歩2分 アストラムライン
長楽寺駅 徒歩9分 アストラムライン
上安駅 徒歩12分 アストラムライン
専有面積
66.27m²
バルコニー
12.2m²
間取り
3LDK
階数
7/10階
築年月
2000年07月中旬
建物現況
居住中

画像カテゴリ

  • 外観
  • 間取り
  • リビング
  • キッチン

取扱店舗

センチュリー21リベルテ 平川 賢司

物件担当者コメント
【アストラムライン高取駅徒歩2分】【3LDK】【南東向きバルコニー】【高層階で眺望良好】
センチュリー21リベルテ 平川 賢司

マンション

藤和ハイタウン戸坂弐番館

■南向きバルコニーで日当たり良好 ■2024年6月リノベーション済み ■2LDK ■緑豊かな高台立地

  • 藤和ハイタウン戸坂弐番館

  • 藤和ハイタウン戸坂弐番館

  • 藤和ハイタウン戸坂弐番館

  • 藤和ハイタウン戸坂弐番館

  • 藤和ハイタウン戸坂弐番館

藤和ハイタウン戸坂弐番館
藤和ハイタウン戸坂弐番館
藤和ハイタウン戸坂弐番館
藤和ハイタウン戸坂弐番館
藤和ハイタウン戸坂弐番館

2,480万円

所在地
広島県広島市東区戸坂数甲2丁目2-43
最寄り駅
戸坂駅 徒歩14分 芸備線
不動院前駅 徒歩38分 アストラムライン
矢賀駅 徒歩54分 芸備線
専有面積
81.32m²
バルコニー
15.27m²
間取り
2LDK
階数
2/4階
築年月
1997年08月中旬
建物現況
居住中

画像カテゴリ

  • 外観
  • 間取り
  • リビング
  • キッチン

取扱店舗

センチュリー21リベルテ 谷 潤也

物件担当者コメント
■南向きバルコニーで日当たり良好 ■2024年6月リノベーション済み ■2LDK ■緑豊かな高台立地
センチュリー21リベルテ 谷 潤也

マンション

パークヒルズ中須公園

パークヒルズ中須公園は落ち着いた環境の中古マンションです。鉄筋コンクリート造で安心してお住まいいただけます。

  • パークヒルズ中須公園

  • パークヒルズ中須公園

  • パークヒルズ中須公園

  • パークヒルズ中須公園

  • パークヒルズ中須公園

パークヒルズ中須公園
パークヒルズ中須公園
パークヒルズ中須公園
パークヒルズ中須公園
パークヒルズ中須公園

3,198万円

所在地
広島県広島市安佐南区大町東1丁目10-20
最寄り駅
大町駅 徒歩12分 アストラムライン
古市橋駅 徒歩12分 可部線
古市駅 徒歩13分 アストラムライン
専有面積
80.20m²
バルコニー
14.94m²
間取り
3LDK
階数
4/11階
築年月
1998年04月中旬
建物現況
空家

画像カテゴリ

  • 外観
  • 間取り
  • リビング
  • 洋室
  • 収納

取扱店舗

センチュリー21リベルテ 山口 慶護

物件担当者コメント
【全面改装済み(令和7年9月)】鉄筋コンクリート造の3LDKアストラムライン大町駅まで徒歩12分
センチュリー21リベルテ 山口 慶護

マンション

パークヒルズ安古市リバーコート

■2SLDK■設備充実の2022年築マンション■ペット飼育可(細則あり)■高層階で眺望良好

  • パークヒルズ安古市リバーコート

  • パークヒルズ安古市リバーコート

  • パークヒルズ安古市リバーコート

  • パークヒルズ安古市リバーコート

  • パークヒルズ安古市リバーコート

パークヒルズ安古市リバーコート
パークヒルズ安古市リバーコート
パークヒルズ安古市リバーコート
パークヒルズ安古市リバーコート
パークヒルズ安古市リバーコート

3,490万円

所在地
広島県広島市安佐南区相田1丁目1-2
最寄り駅
毘沙門台駅 徒歩9分 アストラムライン
安東駅 徒歩14分 アストラムライン
大町駅 徒歩15分 アストラムライン
専有面積
62.93m²
バルコニー
13.1m²
間取り
2SLDK
階数
10/14階
築年月
2022年03月下旬
建物現況
居住中

画像カテゴリ

  • 外観
  • 間取り
  • エントランス
  • キッチン

取扱店舗

センチュリー21リベルテ 山口 慶護

物件担当者コメント
■2SLDK ■設備充実の2022年築マンション ■ペット可(細則あり)■高層階で眺望良好
センチュリー21リベルテ 山口 慶護
チェックした物件(最大10件まで)を
  • 1