売買・賃貸物件を条件から探す
種類から探す

遠賀郡水巻町の一戸建て・一軒家購入情報

遠賀郡水巻町の一戸建て・一軒家をお探しなら不動産フランチャイズ店舗数ナンバー1のセンチュリー21におまかせ下さい。お客様の住みたいエリア・条件の一戸建て・一軒家情報を30件紹介しております。住みたい沿線・駅・地域や、ご希望に合った間取り、予算・ご希望の家賃、徒歩時間などの条件から、ご希望に沿った一戸建て・一軒家情報を見つけていただけます。お客様にご希望に沿うお部屋が見つかるようにお手伝いいたしますので、お気軽にご相談ください!

エリアから探す
福岡県
遠賀郡水巻町

変更

条件で絞り込む

検索結果30

並び順
表示件数
チェックした物件(最大10件まで)を

NEW

戸建て

新築

遠賀郡水巻町美吉野の新築一戸建

  • 遠賀郡水巻町美吉野の新築一戸建

  • 遠賀郡水巻町美吉野の新築一戸建

遠賀郡水巻町美吉野の新築一戸建
遠賀郡水巻町美吉野の新築一戸建

3,098万円

所在地
福岡県遠賀郡水巻町美吉野
最寄り駅
水巻駅 徒歩17分 鹿児島本線
折尾駅 徒歩23分 鹿児島本線
土地面積
170.67m²
建物面積
116.50m²
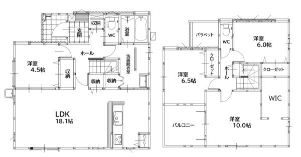
間取り
4LDK
階数
2階建て
築年月
2026年08月下旬
建物現況
建築中

画像カテゴリ

  • 外観
  • 間取り

取扱店舗

センチュリー21APリファレンス 佐藤 秀行

物件担当者コメント
ラ・ムー水巻店徒歩約11分!JR鹿児島本線「水巻駅」徒歩約15分!近隣情報も多数ご用意しております!お気軽にお問合せ下さい【0949-29-6410】
センチュリー21APリファレンス 佐藤 秀行

戸建て

新築

水巻町猪熊8丁目 2号棟 全7棟

★★新生活応援キャンペーン実施中★★【センチュリー21全国991店舗】取引件数530万の信頼と実績★即日ご案内可能!頭金0円!

  • 水巻町猪熊8丁目 2号棟 全7棟

  • 水巻町猪熊8丁目 2号棟 全7棟

  • 水巻町猪熊8丁目 2号棟 全7棟

  • 水巻町猪熊8丁目 2号棟 全7棟

  • 水巻町猪熊8丁目 2号棟 全7棟

水巻町猪熊8丁目 2号棟 全7棟
水巻町猪熊8丁目 2号棟 全7棟
水巻町猪熊8丁目 2号棟 全7棟
水巻町猪熊8丁目 2号棟 全7棟
水巻町猪熊8丁目 2号棟 全7棟

3,120万円

所在地
福岡県遠賀郡水巻町猪熊8丁目
最寄り駅
折尾駅 徒歩54分 鹿児島本線
折尾駅 より車12分 4.80km 鹿児島本線
折尾駅 徒歩54分 筑豊本線
折尾駅 より車12分 4.80km 筑豊本線
水巻駅 徒歩50分 鹿児島本線
水巻駅 より車10分 4.40km 鹿児島本線
本城駅 徒歩61分 筑豊本線
土地面積
201.43m²
建物面積
115.09m²
間取り
4LDK
階数
2階建て
築年月
2026年01月
建物現況
新築

画像カテゴリ

  • 外観
  • 間取り
  • リビング

取扱店舗

センチュリー21ドリームパートナー福岡東店 

物件担当者コメント
★★新生活応援キャンペーン実施中★★【センチュリー21全国991店舗】取引件数530万の信頼と実績★即日ご案内可能!頭金0円!
センチュリー21ドリームパートナー福岡東店

戸建て

新築

水巻町樋口新築戸建

敷地56坪超で駐車3台可能!ゆとりの敷地に建つ収納充実の新築4LDK♪猪熊小学校まで徒歩3分!バス停も徒歩1分で子育て世代に嬉しい住環境★☆

  • 水巻町樋口新築戸建

  • 水巻町樋口新築戸建

  • 水巻町樋口新築戸建

  • 水巻町樋口新築戸建

  • 水巻町樋口新築戸建

水巻町樋口新築戸建
水巻町樋口新築戸建
水巻町樋口新築戸建
水巻町樋口新築戸建
水巻町樋口新築戸建

3,198万円

所在地
福岡県遠賀郡水巻町樋口4-15
最寄り駅
水巻駅 徒歩34分 鹿児島本線
水巻駅 より車7分 2.80km 鹿児島本線
折尾駅 徒歩41分 鹿児島本線
折尾駅 より車9分 4.10km 鹿児島本線
本城駅 徒歩52分 筑豊本線
本城駅 より車11分 4.70km 筑豊本線
土地面積
186.24m²
建物面積
104.33m²
間取り
4LDK
階数
2階建て
築年月
2026年09月
建物現況
建築中

画像カテゴリ

  • 外観
  • 間取り
  • 前面道路含む現地写真

取扱店舗

センチュリー21よしなが企画 中原 零

物件担当者コメント
敷地56坪超で駐車3台可能!ゆとりの敷地に建つ収納充実の新築4LDK♪猪熊小学校まで徒歩3分!バス停も徒歩1分で子育て世代に嬉しい住環境★☆
センチュリー21よしなが企画 中原 零

戸建て

新築

水巻町樋口 全1棟

★★新生活応援キャンペーン実施中★★【センチュリー21全国978店舗】取引件数530万の信頼と実績★即日ご案内可能!頭金0円!

  • 水巻町樋口 全1棟

  • 水巻町樋口 全1棟

  • 水巻町樋口 全1棟

  • 水巻町樋口 全1棟

  • 水巻町樋口 全1棟

水巻町樋口 全1棟
水巻町樋口 全1棟
水巻町樋口 全1棟
水巻町樋口 全1棟
水巻町樋口 全1棟

3,198万円

所在地
福岡県遠賀郡水巻町樋口
最寄り駅
水巻駅 徒歩34分 鹿児島本線
折尾駅 徒歩41分 鹿児島本線
折尾駅 徒歩41分 筑豊本線
本城駅 徒歩52分 筑豊本線
土地面積
186.24m²
建物面積
104.33m²
間取り
4LDK
階数
2階建て
築年月
2026年09月
建物現況
建築中

画像カテゴリ

  • 外観
  • 間取り
  • 完成予想図
  • 同仕様写真(リビング)
  • 同仕様写真(キッチン)

取扱店舗

センチュリー21ドリームパートナー福岡東店 

物件担当者コメント
★★新生活応援キャンペーン実施中★★【センチュリー21全国978店舗】取引件数530万の信頼と実績★即日ご案内可能!頭金0円!
センチュリー21ドリームパートナー福岡東店

戸建て

新築

水巻町吉田西2丁目 5号棟 全6棟

★★新生活応援キャンペーン実施中★★【センチュリー21全国991店舗】取引件数530万の信頼と実績★即日ご案内可能!頭金0円!

  • 水巻町吉田西2丁目 5号棟 全6棟

  • 水巻町吉田西2丁目 5号棟 全6棟

  • 水巻町吉田西2丁目 5号棟 全6棟

  • 水巻町吉田西2丁目 5号棟 全6棟

  • 水巻町吉田西2丁目 5号棟 全6棟

水巻町吉田西2丁目 5号棟 全6棟
水巻町吉田西2丁目 5号棟 全6棟
水巻町吉田西2丁目 5号棟 全6棟
水巻町吉田西2丁目 5号棟 全6棟
水巻町吉田西2丁目 5号棟 全6棟

3,240万円

所在地
福岡県遠賀郡水巻町吉田西2丁目
最寄り駅
水巻駅 徒歩10分 鹿児島本線
東水巻駅 徒歩24分 筑豊本線
中間駅 徒歩35分 筑豊本線
折尾駅 徒歩36分 鹿児島本線
土地面積
218.11m²
建物面積
113.02m²
間取り
4LDK
階数
2階建て
築年月
2026年05月
建物現況
新築

画像カテゴリ

  • 外観
  • 間取り
  • リビング

取扱店舗

センチュリー21ドリームパートナー福岡東店 

物件担当者コメント
★★新生活応援キャンペーン実施中★★【センチュリー21全国991店舗】取引件数530万の信頼と実績★即日ご案内可能!頭金0円!
センチュリー21ドリームパートナー福岡東店

戸建て

新築

美吉野 新築戸建(2号棟)

頼れる収納「ファミリークローク」完備♪SICやWICもありスッキリ暮らす4LDK♪

  • 美吉野 新築戸建(2号棟)

  • 美吉野 新築戸建(2号棟)

  • 美吉野 新築戸建(2号棟)

美吉野 新築戸建(2号棟)
美吉野 新築戸建(2号棟)
美吉野 新築戸建(2号棟)

3,298万円

所在地
福岡県遠賀郡水巻町美吉野22-47
最寄り駅
水巻駅 徒歩17分 鹿児島本線
水巻駅 より車4分 1.20km 鹿児島本線
折尾駅 徒歩23分 鹿児島本線
折尾駅 より車4分 1.60km 鹿児島本線
東水巻駅 徒歩32分 筑豊本線
東水巻駅 より車7分 3.00km 筑豊本線
本城駅 徒歩43分 筑豊本線
本城駅 より車10分 3.60km 筑豊本線
土地面積
170.21m²
建物面積
114.46m²
間取り
4LDK
階数
2階建て
築年月
2026年08月下旬
建物現況
建築中

画像カテゴリ

  • 外観
  • 間取り
  • その他現地

取扱店舗

センチュリー21よしなが企画 松本 侑哉

物件担当者コメント
頼れる収納「ファミリークローク」完備♪SICやWICもありスッキリ暮らす4LDK♪
センチュリー21よしなが企画 松本 侑哉

戸建て

新築

遠賀郡水巻町美吉野4期 2号棟 全2棟

★★新生活応援キャンペーン実施中★★【センチュリー21全国978店舗】取引件数530万の信頼と実績★即日ご案内可能!頭金0円!

  • 遠賀郡水巻町美吉野4期 2号棟 全2棟

  • 遠賀郡水巻町美吉野4期 2号棟 全2棟

  • 遠賀郡水巻町美吉野4期 2号棟 全2棟

  • 遠賀郡水巻町美吉野4期 2号棟 全2棟

  • 遠賀郡水巻町美吉野4期 2号棟 全2棟

遠賀郡水巻町美吉野4期 2号棟 全2棟
遠賀郡水巻町美吉野4期 2号棟 全2棟
遠賀郡水巻町美吉野4期 2号棟 全2棟
遠賀郡水巻町美吉野4期 2号棟 全2棟
遠賀郡水巻町美吉野4期 2号棟 全2棟

3,298万円

所在地
福岡県遠賀郡水巻町美吉野
最寄り駅
水巻駅 徒歩17分 鹿児島本線
折尾駅 徒歩23分 鹿児島本線
折尾駅 徒歩23分 筑豊本線
東水巻駅 徒歩32分 筑豊本線
土地面積
170.21m²
建物面積
114.46m²
間取り
4LDK
階数
2階建て
築年月
2026年08月
建物現況
建築中

画像カテゴリ

  • 外観
  • 間取り
  • 同仕様写真(リビング)
  • 同仕様写真(キッチン)

取扱店舗

センチュリー21ドリームパートナー福岡東店 

物件担当者コメント
★★新生活応援キャンペーン実施中★★【センチュリー21全国978店舗】取引件数530万の信頼と実績★即日ご案内可能!頭金0円!
センチュリー21ドリームパートナー福岡東店

NEW

戸建て

新築

遠賀郡水巻町美吉野の新築一戸建

  • 遠賀郡水巻町美吉野の新築一戸建

  • 遠賀郡水巻町美吉野の新築一戸建

遠賀郡水巻町美吉野の新築一戸建
遠賀郡水巻町美吉野の新築一戸建

3,298万円

所在地
福岡県遠賀郡水巻町美吉野
最寄り駅
水巻駅 徒歩17分 鹿児島本線
折尾駅 徒歩23分 鹿児島本線
土地面積
170.21m²
建物面積
114.46m²
間取り
4LDK
階数
2階建て
築年月
2026年08月下旬
建物現況
建築中

画像カテゴリ

  • 外観
  • 間取り

取扱店舗

センチュリー21APリファレンス 佐藤 秀行

物件担当者コメント
ラ・ムー水巻店徒歩約11分!JR鹿児島本線「水巻駅」徒歩約15分!近隣情報も多数ご用意しております!お気軽にお問合せ下さい【0949-29-6410】
センチュリー21APリファレンス 佐藤 秀行

戸建て

新築

水巻町吉田西2丁目 6号棟 全6棟

★★新生活応援キャンペーン実施中★★【センチュリー21全国991店舗】取引件数530万の信頼と実績★即日ご案内可能!頭金0円!

  • 水巻町吉田西2丁目 6号棟 全6棟

  • 水巻町吉田西2丁目 6号棟 全6棟

  • 水巻町吉田西2丁目 6号棟 全6棟

  • 水巻町吉田西2丁目 6号棟 全6棟

  • 水巻町吉田西2丁目 6号棟 全6棟

水巻町吉田西2丁目 6号棟 全6棟
水巻町吉田西2丁目 6号棟 全6棟
水巻町吉田西2丁目 6号棟 全6棟
水巻町吉田西2丁目 6号棟 全6棟
水巻町吉田西2丁目 6号棟 全6棟

3,430万円

所在地
福岡県遠賀郡水巻町吉田西2丁目
最寄り駅
水巻駅 徒歩10分 鹿児島本線
東水巻駅 徒歩24分 筑豊本線
中間駅 徒歩35分 筑豊本線
折尾駅 徒歩36分 鹿児島本線
土地面積
217.36m²
建物面積
109.30m²
間取り
4LDK
階数
2階建て
築年月
2026年05月
建物現況
建築中

画像カテゴリ

  • 外観
  • 間取り
  • 同仕様写真(リビング)
  • 同仕様写真(キッチン)
  • 同仕様写真(浴室)

取扱店舗

センチュリー21ドリームパートナー福岡東店 

物件担当者コメント
★★新生活応援キャンペーン実施中★★【センチュリー21全国991店舗】取引件数530万の信頼と実績★即日ご案内可能!頭金0円!
センチュリー21ドリームパートナー福岡東店

戸建て

中古

水巻町頃末南3丁目 中古戸建

★★新生活応援キャンペーン実施中★★【センチュリー21全国978店舗】取引件数530万の信頼と実績★即日ご案内可能!頭金0円!

  • 水巻町頃末南3丁目 中古戸建

  • 水巻町頃末南3丁目 中古戸建

  • 水巻町頃末南3丁目 中古戸建

  • 水巻町頃末南3丁目 中古戸建

  • 水巻町頃末南3丁目 中古戸建

水巻町頃末南3丁目 中古戸建
水巻町頃末南3丁目 中古戸建
水巻町頃末南3丁目 中古戸建
水巻町頃末南3丁目 中古戸建
水巻町頃末南3丁目 中古戸建

3,598万円

所在地
福岡県遠賀郡水巻町頃末南3丁目
最寄り駅
水巻駅 徒歩7分 鹿児島本線
東水巻駅 徒歩25分 筑豊本線
遠賀川駅 徒歩33分 鹿児島本線
折尾駅 徒歩34分 鹿児島本線
土地面積
212.06m²
建物面積
115.10m²
間取り
4LDK
階数
2階建て
築年月
2025年03月
建物現況
空家

画像カテゴリ

  • 外観
  • 間取り
  • リビング

取扱店舗

センチュリー21ドリームパートナー福岡東店 馬場 俊平

物件担当者コメント
★★新生活応援キャンペーン実施中★★【センチュリー21全国978店舗】取引件数530万の信頼と実績★即日ご案内可能!頭金0円!
センチュリー21ドリームパートナー福岡東店
チェックした物件(最大10件まで)を

よくある質問

  • Q.

    該当エリアにある一戸建て・一軒家は何件掲載されていますか?

    A.

    遠賀郡水巻町にある一戸建て・一軒家は、30件掲載されています。気になる物件の詳しい情報を確認したり、お問い合わせが簡単な操作ですることができます。地域に密着したプロフェッショナルが、あなたの希望に沿った物件情報探しをサポートします。

  • Q.

    該当エリアにある一戸建て・一軒家は、町名からも探すことができますか?

    A.

    遠賀郡水巻町にある一戸建て・一軒家は、町名から検索をすることで猪熊、樋口、古賀、頃末北、頃末南、美吉野、吉田西、吉田東、吉田南など、より細かいエリアに絞って物件情報をお探しいただくことができます。

  • Q.

    該当エリアにある一戸建て・一軒家は、条件で絞り込みをして探すことができますか?

    A.

    遠賀郡水巻町にある一戸建て・一軒家は、価格、面積、駅からの徒歩分をはじめとした基本的な絞り込み機能から、一戸建て・一軒家に特化した立地、特徴、設備などのこだわり条件での絞り込み機能で物件情報をお探しいただくことができます。