売買・賃貸物件を条件から探す
種類から探す

予讃線の投資事業用購入

予讃線の投資事業用をお探しなら不動産フランチャイズ店舗数ナンバー1のセンチュリー21におまかせ下さい。お客様の住みたいエリア・条件の投資事業用情報を3件紹介しております。住みたい沿線・駅・地域や、ご希望に合った間取り、予算・ご希望の家賃、徒歩時間などの条件から、ご希望に沿った投資事業用情報を見つけていただけます。お客様にご希望に沿うお部屋が見つかるようにお手伝いいたしますので、お気軽にご相談ください!

沿線から探す
香川県
予讃線

変更

条件で絞り込む

検索結果3

並び順
表示件数
  • 1
チェックした物件(最大10件まで)を

事業投資用

一棟

作業所

※事業用の用途に最適な工業地域内※倉庫、作業場など、利用用途は多岐にわたります。※建物の一部は駐車場としても利用できます。

  • 作業所

  • 作業所

  • 作業所

  • 作業所

  • 作業所

作業所
作業所
作業所
作業所
作業所

380万円

所在地
香川県高松市郷東町
最寄り駅
香西駅 徒歩18分 予讃線
敷地面積
196.56m²
利回り
- (満室時: -)
収入
- (満室時: -)
階数
2階建て
築年月
1970年06月
物件現況

画像カテゴリ

  • 外観
  • 間取り
  • その他
  • 前面道路含む現地写真

取扱店舗

センチュリー21エクセルワン不動産販売 

物件担当者コメント
※事業用の用途に最適な工業地域内※倉庫、作業場など、利用用途は多岐にわたります。※建物の一部は駐車場としても利用できます。
センチュリー21エクセルワン不動産販売

事業投資用

一棟

大野原町井関工場

★★★本物件の特徴★★★◆二階建ての工場です!◆物件の詳しい情報はお気軽にお問い合わせください(^^)

  • 大野原町井関工場

  • 大野原町井関工場

大野原町井関工場
大野原町井関工場

800万円

所在地
香川県観音寺市大野原町井関
最寄り駅
豊浜駅 より車9分 6.20km 予讃線
敷地面積
2,252.58m²
利回り
- (満室時: -)
収入
- (満室時: -)
階数
3階建て
築年月
1974年04月下旬
物件現況

画像カテゴリ

  • 間取り
  • 全体区画図

取扱店舗

センチュリー21鴻南産業 

物件担当者コメント
★★★本物件の特徴★★★◆二階建ての工場です!◆物件の詳しい情報はお気軽にお問い合わせください(^^)
センチュリー21鴻南産業

NEW

事業投資用

一棟

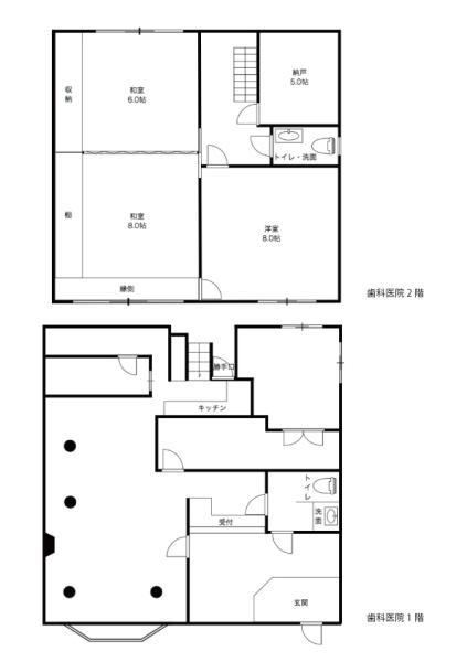
坂出市 元町 歯科医院跡地 駐車場 付帯 戸建あり 土地付き

二階建て一軒家・駐車場付き!坂出駅近くの元歯科医院の建物です。チェアは4台設置可能。レントゲン、技工室あり。

  • 坂出市 元町 歯科医院跡地 駐車場 付帯 戸建あり 土地付き

  • 坂出市 元町 歯科医院跡地 駐車場 付帯 戸建あり 土地付き

  • 坂出市 元町 歯科医院跡地 駐車場 付帯 戸建あり 土地付き

  • 坂出市 元町 歯科医院跡地 駐車場 付帯 戸建あり 土地付き

  • 坂出市 元町 歯科医院跡地 駐車場 付帯 戸建あり 土地付き

坂出市 元町 歯科医院跡地 駐車場 付帯 戸建あり 土地付き
坂出市 元町 歯科医院跡地 駐車場 付帯 戸建あり 土地付き
坂出市 元町 歯科医院跡地 駐車場 付帯 戸建あり 土地付き
坂出市 元町 歯科医院跡地 駐車場 付帯 戸建あり 土地付き
坂出市 元町 歯科医院跡地 駐車場 付帯 戸建あり 土地付き

2,230万円

所在地
香川県坂出市元町3丁目3-6
最寄り駅
坂出駅 徒歩11分 予讃線
敷地面積
181.81m²
利回り
- (満室時: -)
収入
- (満室時: -)
階数
2階建て
築年月
1974年09月
物件現況

画像カテゴリ

  • 外観
  • 間取り
  • その他

取扱店舗

センチュリー21さきがけ 明石 祥有城

物件担当者コメント
二階建て一軒家・駐車場付き!坂出駅近くの元歯科医院の建物です。チェアは4台設置可能。レントゲン、技工室あり。
センチュリー21さきがけ
チェックした物件(最大10件まで)を
  • 1