売買・賃貸物件を条件から探す
種類から探す

上平塚の新築一戸建て(一軒家・分譲・建売)購入

上平塚の新築一戸建て(一軒家・分譲・建売)をお探しなら不動産フランチャイズ店舗数ナンバー1のセンチュリー21におまかせ下さい。お客様の住みたいエリア・条件の新築一戸建て(一軒家・分譲・建売)情報を2件紹介しております。住みたい沿線・駅・地域や、ご希望に合った間取り、予算・ご希望の家賃、徒歩時間などの条件から、ご希望に沿った新築一戸建て(一軒家・分譲・建売)情報を見つけていただけます。お客様にご希望に沿うお部屋が見つかるようにお手伝いいたしますので、お気軽にご相談ください!

エリアから探す
神奈川県
平塚市 上平塚

変更

条件で絞り込む

検索結果2

並び順
表示件数
  • 1
チェックした物件(最大10件まで)を

NEW

戸建て

新築

平塚市上平塚の新築一戸建

両面道路で開放的。コミュニケーションのとれるリビングイン階段のあるLDK。全居室収納付き。

  • 平塚市上平塚の新築一戸建

  • 平塚市上平塚の新築一戸建

平塚市上平塚の新築一戸建
平塚市上平塚の新築一戸建

3,080万円

所在地
神奈川県平塚市上平塚
最寄り駅
平塚駅 バス16分 達上ケ丘停 停歩1分 東海道本線
大磯駅 徒歩41分 東海道本線
土地面積
88.49m²
建物面積
78.56m²
間取り
3LDK
階数
2階建て
築年月
2025年12月
建物現況
建築中

画像カテゴリ

  • 間取り
  • その他

取扱店舗

センチュリー21アース住販 

物件担当者コメント
両面道路で開放的。コミュニケーションのとれるリビングイン階段のあるLDK。全居室収納付き。
センチュリー21アース住販

NEW

戸建て

新築

平塚市上平塚の新築一戸建

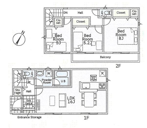
両面道路で開放的。全居室南東向き。主寝室はゆったり8帖。全居室収納付きの3LDK。

  • 平塚市上平塚の新築一戸建

  • 平塚市上平塚の新築一戸建

平塚市上平塚の新築一戸建
平塚市上平塚の新築一戸建

3,280万円

所在地
神奈川県平塚市上平塚
最寄り駅
平塚駅 バス16分 達上ケ丘停 停歩1分 東海道本線
大磯駅 徒歩41分 東海道本線
土地面積
93.34m²
建物面積
83.42m²
間取り
3LDK
階数
2階建て
築年月
2025年12月
建物現況
建築中

画像カテゴリ

  • 間取り
  • その他

取扱店舗

センチュリー21アース住販 

物件担当者コメント
両面道路で開放的。全居室南東向き。主寝室はゆったり8帖。全居室収納付きの3LDK。
センチュリー21アース住販
チェックした物件(最大10件まで)を
  • 1