売買・賃貸物件を条件から探す
種類から探す

小田急電鉄小田原線の一戸建て・一軒家購入

小田急電鉄小田原線の一戸建て・一軒家をお探しなら不動産フランチャイズ店舗数ナンバー1のセンチュリー21におまかせ下さい。お客様の住みたいエリア・条件の一戸建て・一軒家情報を308件紹介しております。住みたい沿線・駅・地域や、ご希望に合った間取り、予算・ご希望の家賃、徒歩時間などの条件から、ご希望に沿った一戸建て・一軒家情報を見つけていただけます。お客様にご希望に沿うお部屋が見つかるようにお手伝いいたしますので、お気軽にご相談ください!

沿線から探す
東京都
小田急電鉄小田原線

変更

条件で絞り込む

検索結果308

並び順
表示件数
チェックした物件(最大10件まで)を

戸建て

中古

町田市成瀬台3丁目 中古戸建

敷地はゆとりの約62坪。用途別にお部屋を使い分けできる7SLDK。1階8帖の和室には堀コタツ付きです。現況空き家につき、お気軽に内覧していただけます。

  • 町田市成瀬台3丁目 中古戸建

  • 町田市成瀬台3丁目 中古戸建

  • 町田市成瀬台3丁目 中古戸建

  • 町田市成瀬台3丁目 中古戸建

  • 町田市成瀬台3丁目 中古戸建

町田市成瀬台3丁目 中古戸建
町田市成瀬台3丁目 中古戸建
町田市成瀬台3丁目 中古戸建
町田市成瀬台3丁目 中古戸建
町田市成瀬台3丁目 中古戸建

3,800万円

所在地
東京都町田市成瀬台3丁目
最寄り駅
こどもの国駅 徒歩20分 東急こどもの国線
玉川学園前駅 徒歩21分 小田急電鉄小田原線
成瀬駅 徒歩29分 横浜線
土地面積
208.14m²
建物面積
147.26m²
間取り
7SLDK
階数
2階建て
築年月
1974年01月
建物現況
空家

画像カテゴリ

  • 外観
  • 間取り
  • その他現地
  • リビング

取扱店舗

センチュリー21中央ハウジング 桑原 恒次

物件担当者コメント
敷地はゆとりの約62坪。用途別にお部屋を使い分けできる7SLDK。1階8帖の和室には堀コタツ付きです。現況空き家につき、お気軽に内覧していただけます。
センチュリー21中央ハウジング 桑原 恒次

戸建て

中古

町田市真光寺3丁目の中古一戸建

収納豊富な中古戸建です。

  • 町田市真光寺3丁目の中古一戸建

  • 町田市真光寺3丁目の中古一戸建

町田市真光寺3丁目の中古一戸建
町田市真光寺3丁目の中古一戸建

3,888万円

所在地
東京都町田市真光寺3丁目
最寄り駅
鶴川駅 バス10分 /停 停歩3分 小田急電鉄小田原線
黒川駅 徒歩28分 小田急電鉄多摩線
栗平駅 徒歩29分 小田急電鉄多摩線
土地面積
184.86m²
建物面積
118.95m²
間取り
4LDK
階数
2階建て
築年月
1983年02月
建物現況
空家

画像カテゴリ

  • 間取り
  • 区画図

取扱店舗

センチュリー21アース住販 

物件担当者コメント
収納豊富な中古戸建です。
センチュリー21アース住販

戸建て

新築

町田市本町田 新築一戸建て

●リビング全体を見渡せる対面式キッチン●明るい2階LDK●食洗機・浴室乾燥機など充実の設備

  • 町田市本町田 新築一戸建て

  • 町田市本町田 新築一戸建て

  • 町田市本町田 新築一戸建て

  • 町田市本町田 新築一戸建て

  • 町田市本町田 新築一戸建て

町田市本町田 新築一戸建て
町田市本町田 新築一戸建て
町田市本町田 新築一戸建て
町田市本町田 新築一戸建て
町田市本町田 新築一戸建て

3,980万円

所在地
東京都町田市本町田
最寄り駅
古淵駅 バス11分 ***停 停歩5分 横浜線
町田駅 バス15分 本町田停 停歩6分 小田急電鉄小田原線
町田駅 バス15分 本町田停 停歩6分 横浜線
土地面積
122.77m²
建物面積
72.87m²
間取り
3LDK
階数
2階建て
築年月
2026年01月
建物現況
建築中

画像カテゴリ

  • 外観
  • 間取り
  • その他現地
  • 前面道路含む現地写真

取扱店舗

センチュリー21アイ建設 

物件担当者コメント
●リビング全体を見渡せる対面式キッチン●明るい2階LDK●食洗機・浴室乾燥機など充実の設備
センチュリー21アイ建設

戸建て

新築

町田市野津田町の新築一戸建

家族がゆったり過ごせる広々リビング。ライフスタイルに合わせて分割可能な洋室有。

  • 町田市野津田町の新築一戸建

  • 町田市野津田町の新築一戸建

町田市野津田町の新築一戸建
町田市野津田町の新築一戸建

3,980万円

所在地
東京都町田市野津田町
最寄り駅
鶴川駅 バス8分 袋橋停 停歩4分 小田急電鉄小田原線
玉川学園前駅 徒歩45分 小田急電鉄小田原線
栗平駅 徒歩56分 小田急電鉄多摩線
黒川駅 徒歩57分 小田急電鉄多摩線
土地面積
126.05m²
建物面積
99.42m²
間取り
3LDK
階数
2階建て
築年月
2026年01月
建物現況
建築中

画像カテゴリ

  • 間取り
  • 全体区画図

取扱店舗

センチュリー21アース住販 

物件担当者コメント
家族がゆったり過ごせる広々リビング。ライフスタイルに合わせて分割可能な洋室有。
センチュリー21アース住販

戸建て

新築

町田市本町田の新築一戸建

南向きLDK&リビング上部は勾配天井で開放感溢れます。水廻りを2階に集中させた家事動線良好な間取です

  • 町田市本町田の新築一戸建

  • 町田市本町田の新築一戸建

町田市本町田の新築一戸建
町田市本町田の新築一戸建

3,980万円

所在地
東京都町田市本町田
最寄り駅
古淵駅 バス11分 給水塔前停 停歩5分 横浜線
町田駅 バス15分 給水塔前停 停歩6分 横浜線
町田駅 バス15分 給水塔前停 停歩6分 小田急電鉄小田原線
土地面積
122.77m²
建物面積
72.87m²
間取り
3LDK
階数
2階建て
築年月
2026年01月
建物現況
建築中

画像カテゴリ

  • 間取り
  • 区画図

取扱店舗

センチュリー21アース住販 

物件担当者コメント
南向きLDK&リビング上部は勾配天井で開放感溢れます。水廻りを2階に集中させた家事動線良好な間取です
センチュリー21アース住販

戸建て

新築

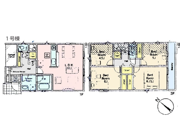
物件基礎名称 3号棟

●小学校が近く子育てに安心●前面道路が広く駐車ラクラク●会話の弾む対面式キッチン完備

  • 物件基礎名称 3号棟

  • 物件基礎名称 3号棟

  • 物件基礎名称 3号棟

  • 物件基礎名称 3号棟

  • 物件基礎名称 3号棟

物件基礎名称 3号棟
物件基礎名称 3号棟
物件基礎名称 3号棟
物件基礎名称 3号棟
物件基礎名称 3号棟

3,980万円

所在地
東京都町田市鶴川4丁目
最寄り駅
鶴川駅 バス13分 和光学園停 停歩2分 小田急電鉄小田原線
土地面積
103.57m²
建物面積
83.63m²
間取り
3LDK
階数
2階建て
築年月
2025年09月
建物現況
新築

画像カテゴリ

  • 外観
  • 間取り
  • その他現地

取扱店舗

センチュリー21アイ建設 

物件担当者コメント
●小学校が近く子育てに安心●前面道路が広く駐車ラクラク●会話の弾む対面式キッチン完備
センチュリー21アイ建設

戸建て

新築

町田市鶴川4丁目 新築一戸建て

●小学校が近く子育てに安心●前面道路が広く駐車ラクラク●会話の弾む対面式キッチン完備

  • 町田市鶴川4丁目 新築一戸建て

  • 町田市鶴川4丁目 新築一戸建て

  • 町田市鶴川4丁目 新築一戸建て

  • 町田市鶴川4丁目 新築一戸建て

  • 町田市鶴川4丁目 新築一戸建て

町田市鶴川4丁目 新築一戸建て
町田市鶴川4丁目 新築一戸建て
町田市鶴川4丁目 新築一戸建て
町田市鶴川4丁目 新築一戸建て
町田市鶴川4丁目 新築一戸建て

3,980万円

所在地
東京都町田市鶴川4丁目
最寄り駅
鶴川駅 バス13分 和光学園停 停歩2分 小田急電鉄小田原線
土地面積
104.74m²
建物面積
95.58m²
間取り
3LDK
階数
2階建て
築年月
2025年09月
建物現況
新築

画像カテゴリ

  • 外観
  • 間取り
  • その他現地

取扱店舗

センチュリー21アイ建設 

物件担当者コメント
●小学校が近く子育てに安心●前面道路が広く駐車ラクラク●会話の弾む対面式キッチン完備
センチュリー21アイ建設

戸建て

新築

町田市鶴川4丁目の新築一戸建

太陽光発電搭載住宅。対面キッチンで家族との会話も弾みます。

  • 町田市鶴川4丁目の新築一戸建

  • 町田市鶴川4丁目の新築一戸建

町田市鶴川4丁目の新築一戸建
町田市鶴川4丁目の新築一戸建

3,980万円

所在地
東京都町田市鶴川4丁目
最寄り駅
鶴川駅 バス13分 和光学園停 停歩2分 小田急電鉄小田原線
黒川駅 徒歩35分 小田急電鉄多摩線
栗平駅 徒歩37分 小田急電鉄多摩線
はるひ野駅 徒歩41分 小田急電鉄多摩線
土地面積
104.74m²
建物面積
95.58m²
間取り
4LDK
階数
2階建て
築年月
2025年08月
建物現況
新築

画像カテゴリ

  • 間取り
  • 全体区画図

取扱店舗

センチュリー21アース住販 

物件担当者コメント
太陽光発電搭載住宅。対面キッチンで家族との会話も弾みます。
センチュリー21アース住販

戸建て

新築

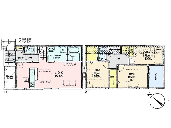
町田市本町田 新築分譲住宅 2号棟

2階にLDKと洗面・バスルームのある間取りです。リビングは勾配天井になっており開放感があります。キッチンがすっきり片付くカップボード&パントリー付き。

  • 町田市本町田 新築分譲住宅 2号棟

  • 町田市本町田 新築分譲住宅 2号棟

  • 町田市本町田 新築分譲住宅 2号棟

  • 町田市本町田 新築分譲住宅 2号棟

  • 町田市本町田 新築分譲住宅 2号棟

町田市本町田 新築分譲住宅 2号棟
町田市本町田 新築分譲住宅 2号棟
町田市本町田 新築分譲住宅 2号棟
町田市本町田 新築分譲住宅 2号棟
町田市本町田 新築分譲住宅 2号棟

3,980万円

所在地
東京都町田市本町田
最寄り駅
古淵駅 バス11分 給水塔前停 停歩5分 横浜線
町田駅 バス15分 本町田停 停歩6分 横浜線
町田駅 バス15分 本町田停 停歩6分 小田急電鉄小田原線
土地面積
122.77m²
建物面積
72.87m²
間取り
3LDK
階数
2階建て
築年月
2026年01月
建物現況
建築中

画像カテゴリ

  • 外観
  • 間取り
  • その他現地

取扱店舗

センチュリー21中央ハウジング 草清 隆盛

物件担当者コメント
2階にLDKと洗面・バスルームのある間取りです。リビングは勾配天井になっており開放感があります。キッチンがすっきり片付くカップボード&パントリー付き。
センチュリー21中央ハウジング 草清 隆盛

戸建て

新築

町田市鶴川4丁目の新築一戸建

太陽光発電搭載住宅。対面キッチンで家族との会話も弾みます。

  • 町田市鶴川4丁目の新築一戸建

  • 町田市鶴川4丁目の新築一戸建

町田市鶴川4丁目の新築一戸建
町田市鶴川4丁目の新築一戸建

3,980万円

所在地
東京都町田市鶴川4丁目
最寄り駅
鶴川駅 バス13分 和光学園停 停歩2分 小田急電鉄小田原線
黒川駅 徒歩35分 小田急電鉄多摩線
栗平駅 徒歩37分 小田急電鉄多摩線
はるひ野駅 徒歩41分 小田急電鉄多摩線
土地面積
103.57m²
建物面積
83.63m²
間取り
3LDK
階数
2階建て
築年月
2025年08月
建物現況
新築

画像カテゴリ

  • 間取り
  • 全体区画図

取扱店舗

センチュリー21アース住販 

物件担当者コメント
太陽光発電搭載住宅。対面キッチンで家族との会話も弾みます。
センチュリー21アース住販
チェックした物件(最大10件まで)を