売買・賃貸物件を条件から探す
種類から探す

東光台の賃貸物件

東光台の賃貸マンション、アパートをお探しなら不動産フランチャイズ店舗数ナンバー1のセンチュリー21におまかせ下さい。お客様の住みたいエリア・条件の賃貸マンション、アパート情報を1件紹介しております。住みたい沿線・駅・地域や、ご希望に合った間取り、予算・ご希望の家賃、徒歩時間などの条件から、ご希望に沿った賃貸マンション、アパート情報を見つけていただけます。お客様にご希望に沿うお部屋が見つかるようにお手伝いいたしますので、お気軽にご相談ください!

エリアから探す
茨城県
つくば市 東光台

変更

条件で絞り込む

検索結果1

並び順
表示件数
  • 1
チェックした物件(最大10件まで)を

賃貸

貸家

WisteriaA・B(ウェステリア)

貴重なペット飼育可、広々100平米越の3LDKメゾネット!暮らしに便利な浴室乾燥機・宅配ボックスつき!

  • WisteriaA・B(ウェステリア)

  • WisteriaA・B(ウェステリア)

  • WisteriaA・B(ウェステリア)

  • WisteriaA・B(ウェステリア)

  • WisteriaA・B(ウェステリア)

WisteriaA・B(ウェステリア)
WisteriaA・B(ウェステリア)
WisteriaA・B(ウェステリア)
WisteriaA・B(ウェステリア)
WisteriaA・B(ウェステリア)

16万円

敷金/礼金
なし/なし
保証金/敷引
なし/なし
所在地
茨城県つくば市東光台3丁目17-6
最寄り駅
研究学園駅 より車8分 2.60km つくばエクスプレス
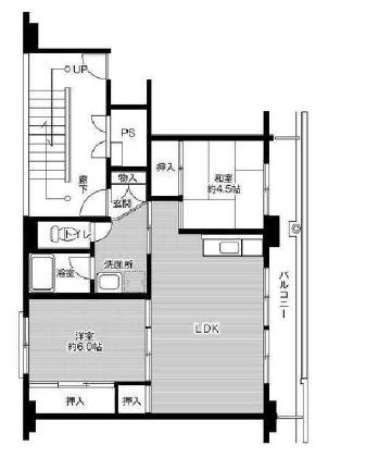
建物/専有面積
100.61m²
間取り
3LDK
階数
/2階
築年月
2024年12月

画像カテゴリ

  • 間取り
  • リビング
  • キッチン

取扱店舗

センチュリー21タクミ不動産 

物件担当者コメント
貴重なペット飼育可、広々100平米越の3LDKメゾネット!暮らしに便利な浴室乾燥機・宅配ボックスつき!
センチュリー21タクミ不動産
チェックした物件(最大10件まで)を
  • 1